Статья

Оптимальные размеры в идеальном проекте дома

прочесть за 3 минуты дата публикации 21.10.2024г.

В этой статье я расскажу про оптимальные размеры и расстояния, которые нужно знать при выборе проекта своего будущего дома.

Эдуард Охильков
Мнение эксперта
Эдуард Охильков
архитектор, инженер-строитель, эксперт

Рациональные планировки проектов загородных домов складываются из оптимальных размеров помещений и предметов мебели, а также конструкций на территории участка. Начнем с участка.

Минимальные размеры помещений
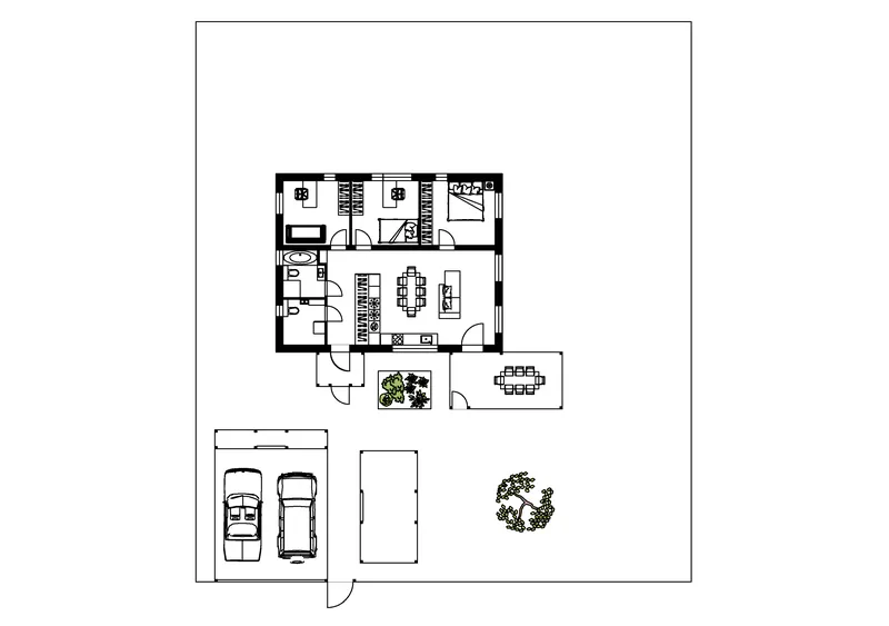
  1. Калитка – шириной 1м нужна для комфортного проезда детской коляски, инвалидной коляски и строительной тачки.
  2. Автонавес – ширина 5,9м, длина 7м. Размер 5,9м позволяет комфортно парковать 2 автомобиля параллельно друг другу. Во-вторых, при размере подъемно-секционных ворот более 6м стоимость их резко возрастает, т.к. они переходят в разряд промышленных ворот. При этом между машинами остается комфортное расстояние в 1м, а по краям до проекции навеса - по 0,5м.
    Эдуард Охильков
    Мнение эксперта
    Эдуард Охильков
    архитектор, инженер-строитель, эксперт

    Длина навеса в 7м определена длиной автомобилей – до 5м, чтобы при этом оставались комфортные проходы более 1м перед и сзади авто, в т.ч. для открытия багажника и его выгрузки.

    Основной план с автонавесом и хозблоками
  3. Крыльцо - длина 2,5м, ширина 1,8м определены размерами конструкционных материалов.
  4. Терраса – длина 5,9м, ширина 3м определены габаритом обеденного стола до 1м и проходов с 2х сторон по 1м, а также кратностью длины рабочей арматуры при бетонировании фундаментной плиты под террасу.
  5. Хозблоки – длина 5,9м, ширина для компактного хозблока 1м, для вместительного – 3м. Кроме того, при проектировании хозблока для конкретного участка его ширину можно выбирать любую от 1 до 3м. Для удобства мы используем шаг в 0,5м.
  6. Перемещаемся внутрь дома и сопоставляем оптимальные площади помещений, размеры мебели и расстояния для проходов.
  7. Минимальная ширина коридора 1100мм – определена шириной дверного проема 900мм простенков по 10см с каждой стороны для монтажа наличников.
  8. Котельная – площадь 5м² при высоте потолка 3м, минимальная ширина котельной 2м. Объем 15м³ определен требованиями к газовой котельной.
  9. Минимальные размеры с/у:

    a) Только с унитазом – 1,6м² б) с раковиной шириной 800мм – 2,2м² в) с душевой зоной – 4,0м².

  10. Минимальные размеры ванной 4,6м² с размерами 2500 х 1850мм, в которой размещается следующее сантех. оборудование: унитаз, раковина 80см, ванна 180 х 80см, душевая зона. Следующая по размерам популярная компоновка в ванной – 5,7м² с размерами 2200 х 2600мм.
  11. Гардеробные шкафы для верхней одежды в зоне входной группы глубиной 70см, в жилых комнатах - 60см. Длину простенков и ниш рекомендую проектировать исходя из кратности одной секции шкафа – 60см.
  12. Стандартная 2х-линейная кухня представлена одной линией с нижними шкафчиками и столешницей длиной 3м и линией с пеналами с минимальным количеством от 4х. Длина линий кратна размеру одного стандартного шкафа 60см.
  13. Оптимальные размеры обеденного стола - 180/200 х 90/100см.
  14. Оптимальные размеры острова - глубина 1000, если шкафы по одной стороне острова и 1200мм, если с 2х сторон.
  15. Расстояния между корпусной мебелью кухни - 1200мм, если с одной стороны стена или диван – 1000мм.
  16. Минимальная площадь гостиной, совмещенной с кухней 25м²
  17. Минимальная площадь спальни с 2-спальной кроватью шириной 180см - 11,4м² с размерами спальной зоны 3200мм х 3000мм. Расстояние 3200мм определено шириной кровати 1800мм и минимальные проходы по 700мм с каждой стороны. Расстояние 3000мм определено длиной кровати и проходом перед ней. К одной из сторон еще добавляется зона шириной 600мм для установки гардеробного шкафа. Т.о. минимальный размер комнаты получается 3000мм х 3800мм.
  18. Максимально уменьшаем или полностью исключаем при возможности все транзитные зоны (коридоры, холлы) в пользу полезных жилых или технических.

Выбирая общую площадь своего будущего дома задайте себе вопрос: зачем мне нужен каждый квадратный метр? Метры, наличие которых вы не можете аргументированно обосновать лишние, а их строительство - нерациональное. Следуя этому простому совету Вы сможете сэкономить при реализации проекта несколько миллионов рублей!

Задать вопрос эксперту

Email
Вопрос

* — Поля, обязательные для заполнения

Этот сайт защищён с помощью Yandex SmartCaptcha
Заявка на строительство дома или покупку проекта

Получить смету / задать вопрос

Номер телефона
E-mail
Сообщение
Если есть свой проект (эскизы)

* — Поля, обязательные для заполнения

Заполняя данную форму, Пользователь даёт согласие на обработку, хранение и использование своих персональных данных на основании ФЗ № 152-ФЗ «О персональных данных» от 27.07.2006 г. в целях получения строительной сметы и консультаций. Этот сайт защищён с помощью Yandex SmartCaptcha
Проект дома Проект дома