Интернет магазин проектов

FH-114L Liner
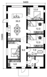
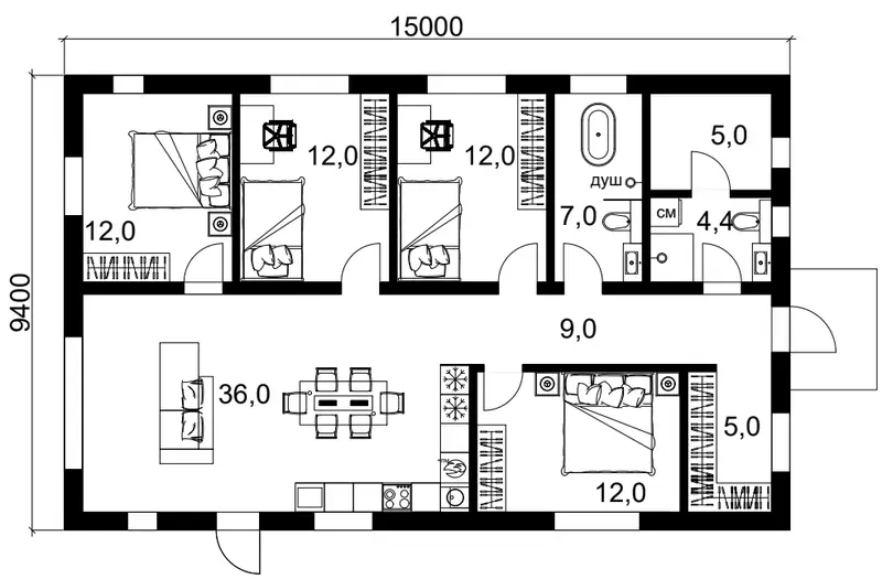
Проект Лайнер 114 (114м²)

Информация о проекте

  • Общая площадь 114 м²
  • Этажи 1
  • Спальни 4
  • Стоимость
    проекта
    9 000 р. 36 000 р.
акция -75%
Готовится к продаже

Стоимость строительства дома, руб.

Строительство по проекту на 2026г.

материалы + работы + доставка + спецтехника

Коробка

Из газобетона

7 132 524

— Проект адаптирован для получения в банках ипотеки ИЖС.

Построить с нами
Проект Лайнер 114_1
Проект Лайнер 114_2
Проект Лайнер 114_3
Проект Лайнер 114_4
Проект Лайнер 114_5
Проект Лайнер 114_6
Проект Лайнер 114_7
Проект Лайнер 114_8
Проект Лайнер 114_9
Проект Лайнер 114_10
Проект Лайнер 114_1
Проект Лайнер 114_2
Проект Лайнер 114_3
Проект Лайнер 114_4
Проект Лайнер 114_5
Проект Лайнер 114_6
Проект Лайнер 114_7
Проект Лайнер 114_8
Проект Лайнер 114_9
Проект Лайнер 114_10
Визуализации являются интеллектуальной собственностью ИП Охильков Э.А. и защищены ч.4 ГК РФ.

Построенные объекты

Всего построено 162 объекта
20 фото
Строительство коттеджа по проекту FH-115 Status-2
  • Местоположение Московская обл.

  • Строительство дома из газобетона 115м²

19 фото
Строительство коттеджа по проекту FH-115 Status-2
  • Местоположение Московская обл.

  • Строительство дома из газобетона 115м²

Смотреть все построенные объекты
Предыдущий

FH-114F Furor

114м²
7 128 152 р.
Следующий

FH-114OF Optimus FOUR

114 м²
7 193 505 р.

Статьи о проекте FH-114L Liner

Проект дома Liner 114м2 для вытянутых участков
прочесть за 5 минут
Эдуард Охильков
Автор статьи
Эдуард Охильков.
Дата публикации
14.02.2026
Заявка на строительство дома или покупку проекта

Получить смету / задать вопрос

Мы определили ваш регион как Ашберн. Если место застройки находится в Московской или Ленинградской областях, укажите его в поле сообщения
Номер телефона
E-mail
Сообщение
Если есть свой проект (эскизы)

* — Поля, обязательные для заполнения

Заполняя данную форму, Пользователь даёт согласие на обработку, хранение и использование своих персональных данных на основании ФЗ № 152-ФЗ «О персональных данных» от 27.07.2006 г. в целях получения строительной сметы и консультаций. This site is protected by reCAPTCHA and the Google Privacy Policy and Terms of Service apply.
Проект дома Проект дома