Интернет магазин проектов

Проект FH-212M Maximus (212м²)

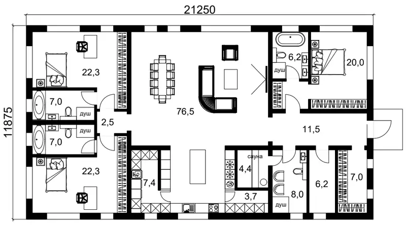
Информация о проекте

  • Общая площадь 212 м²
  • Этажи 1
  • Спальни 3
  • Стоимость
    проекта
    12 000 р. 48 000 р.
акция -75%
Готовится к продаже

Стоимость строительства дома, руб.

Строительство по проекту на 2026г.

материалы + работы + доставка + спецтехника

Коробка

Из газобетона

12 820 478

— Проект адаптирован для получения в банках ипотеки ИЖС.

Построить с нами
Проект FH-212M Maximus_1
Проект FH-212M Maximus_2
Проект FH-212M Maximus_3
Проект FH-212M Maximus_4
Проект FH-212M Maximus_5
Проект FH-212M Maximus_6
Проект FH-212M Maximus_7
Проект FH-212M Maximus_8
Проект FH-212M Maximus_9
Проект FH-212M Maximus_1
Проект FH-212M Maximus_2
Проект FH-212M Maximus_3
Проект FH-212M Maximus_4
Проект FH-212M Maximus_5
Проект FH-212M Maximus_6
Проект FH-212M Maximus_7
Проект FH-212M Maximus_8
Проект FH-212M Maximus_9
Визуализации являются интеллектуальной собственностью ИП Охильков Э.А. и защищены ч.4 ГК РФ.

Построенные объекты

Всего построено 158 объектов
17 фото
Строительство коттеджа по проекту FH-114A Optimus ALP
  • Местоположение Московская обл.

  • Строительство дома из газобетона 114м²

22 фото
Строительство дома по проекту FH-114 Optimus
  • Местоположение Московская обл.

  • Строительство дома из газобетона 114м²

Смотреть все построенные объекты
Предыдущий

FH-210D DOMiNA

210м²
12 065 736 р.

Статьи о проекте FH-212M Maximus

Проект большого одноэтажника для вытянутых участков Maximus 212м2
прочесть за 6 минут
Эдуард Охильков
Автор статьи
Эдуард Охильков.
Дата публикации
05.07.2025
Заявка на строительство дома или покупку проекта

Получить смету / задать вопрос

Мы не смогли определить ваш регион. Если место застройки находится в Московской или Ленинградской областях, укажите его в поле сообщения
Номер телефона
E-mail
Сообщение
Если есть свой проект (эскизы)

* — Поля, обязательные для заполнения

Заполняя данную форму, Пользователь даёт согласие на обработку, хранение и использование своих персональных данных на основании ФЗ № 152-ФЗ «О персональных данных» от 27.07.2006 г. в целях получения строительной сметы и консультаций. This site is protected by reCAPTCHA and the Google Privacy Policy and Terms of Service apply.
Проект дома Проект дома