Интернет-магазин проектов

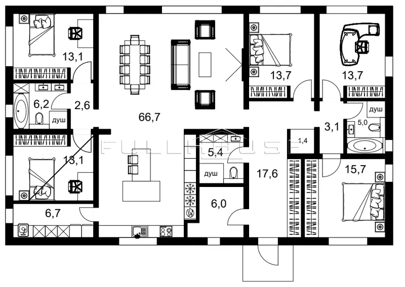
FH-190A Apollo
Купить Проект Аполлон 190 (190м²)

  • Характеристики: площадь 190м²;   5 спален;   1 этаж
  • Стоимость
    проекта (АР)
    12 000 р. 48 000 р.
акция -75% купили 7

Выберите планировку:

Подождите, формируем заказ

Получить проект

Имя *
Фамилия *
Email *
Проект *
Договор *
Заполняя данную форму, Пользователь даёт согласие на обработку, хранение и использование своих персональных данных на основании ФЗ № 152-ФЗ «О персональных данных» от 27.07.2006г.