Статья

Большой одноэтажник с 5 спальнями Apollo 190м2

прочесть за 5 минут дата публикации 30.08.2025г.

Содержание

  1. Общая информация и стоимость проекта
  2. Экспликация помещений
  3. Остальная информация

Проект одноэтажного дома из газобетона Apollo общей площадью 190 м² с 5 спальнями имеет все необходимые функциональные помещения с продуманной планировкой и сценариями для комфортной жизни загородом. Планировка имеет четкое разделение на функциональные блоки: 1) входной, 2) родительский, 3) гостевой 4) детский, 5) дневного пребывания, 6) хозяйский.

Общая информация и стоимость проекта

Главная визуализация проекта FH-190A Apollo
  • Внешние размеры дома 19,2м x 11,8м
    (Черновые без учёта отделки фасада)
  • Полезная площадь 190,0м²
    (без учёта площади крыльца и террасы)
  • Количество этажей 1
  • Количество спален 5
  • Серия Форум (FORus)

Строительная смета

Цена рассчитана для строительства в Ленинградской области.
Строительная смета бесплатно — без регистрации.
Цена рассчитана для строительства в Московской области.
Строительная смета бесплатно — без регистрации.

Стоимость проекта

Проект Аполлон 190 (FH-190A Apollo) (только электронная версия в формате PDF)

12 000 р 48 000 р (акция -75%)

Состав проекта

  1. Общие данные (1 страница);
  2. Поэтажные экспликации помещений (2 страницы соответственно количеству этажей);
  3. План фундамента с закладными под инженерные коммуникации;
  4. Поэтажные кладочные планы (2 страницы соответственно количеству этажей);
  5. Поэтажная аксонометрия (2 страницы соответственно количеству этажей);
  6. План кровли (вид сверху) без прорисовки водосточной системы и вспомогательных элементов крыши (1 страница);
  7. Фасады в черно-белом виде без прорисовки элементов отделки и деталей декора (4 страницы);
  8. Разрез с указанием высотных отметок, размеры оконных и дверных проемов без прорисовки самих окон и дверей (1 страница).

Проект адаптирован для предоставления в основные банки с целью получения ипотеки под строительство частного дома.

Купить проект Построить с нами

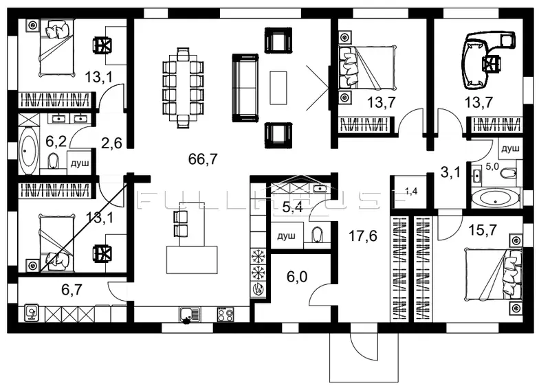
Экспликация помещений

Первый этаж проекта FH-190A Apollo
  1. Холл - 17,6м²
  2. Кладовка - 1,4м²
  3. Котельная - 6м²
  4. Гостевой с/у - 5,4м²
  5. Хозяйская спальня - 15,7м²
  6. Ванная - 5м²
  7. Кабинет - 13,7м²
  8. Гостевая спальня - 13,7м²
  9. 2 спальни по 13,1м²
  10. Общая ванная - 6,2м²
  11. Единое пространство гостиная-кухня-столовая - 66,7м²
  12. Постирочная - 6,7м²

Другие проекты серии Форум (FORus)

Проект Форум 133М
купили 10
Общая площадь:
133м²
Характеристики:
1 этаж; 3 спальни
Купить проект за:
9 000 р.
Построить за:
8 630 137 р.
Проект ТРОЯ 173М
купили 11

FH-173T Trinity Проект ТРОЯ 173М

Общая площадь:
173м²
Характеристики:
1 этаж; 3 спальни
Купить проект за:
12 000 р.
Построить за:
9 936 653 р.
Проект дома ДОМкрат 172
купили 9
Общая площадь:
172м²
Характеристики:
1 этаж; 3 спальни
Купить проект за:
12 000 р.
Построить за:
10 471 775 р.
Смотреть все проекты серии

Такой принцип планировки дает следующие преимущества:

  1. Находясь в доме, входную, условно грязную зону, члены семьи не пересекают.
  2. Родительский и детский блоки максимально далеко разнесены друг от друга, что создает максимальный акустический комфорт.
  3. Родительский блок представлен спальней со своей ванной комнатой и кабинетом.
  4. Изолированный детский блок с равнозначными по площади спальнями и общей ванной.
  5. Центральное расположение блока дневного пребывания значительно снижает площадь коридоров в доме, т.к. транзитная зона находится непосредственно в объеме гостиной, объединяясь с ней, поэтому она не воспринимается таковой, в отличие от коридоров и холлов. Это особенно актуально для домов большой площади. Таким образом, количество транзитных зон максимально уменьшено в пользу активных для рационального использования всей площади дома. Процентное соотношение зон в проекте следующее: жилые 71,5%, технические 16%, транзитные 12,5%.
  6. К блоку дневного пребывания также относится и терраса с выходом из зоны столовой.
  7. Хозяйский блок, который состоит из кухни и постирочной, скрыт и не виден при входе в гостиную. Хозяйка, занимаясь основными домашними делами (готовкой, стиркой, уборкой), меньше тратит времени и сил на перемещения по дому, потому что все необходимые помещения располагаются в одной зоне. Панорамное окно-фартук позволяет контролировать улицу и въездную группу на участке, что актуально, когда, например, семья ждет гостей или перед домом располагается детская игровая площадка. При этом, занимаясь готовкой за кухонным островом, хозяйка может общаться с членами семьи и гостями, которые сидят за обеденным столом или в диванной зоне. Проектом предусмотрена возможность организации при необходимости дополнительной линии высоких шкафов. В постирочной можно организовать дополнительный выход на участок.
  8. Подобное расположение хозяйственного блока позволяет полностью отделить его перегородкой от гостиной, если есть такой запрос у тех, кто предпочитает изолированную кухню.

Проектом предусмотрено достаточное количество зон хранения, без учета систем хранения на кухне и в уличных хозблоках.

Эдуард Охильков
Мнение эксперта
Эдуард Охильков
архитектор, инженер-строитель, эксперт

Внешние и внутренние несущие стены имеют такую толщину, которая позволяют возводить их на выбор из газобетона или кирпича. Внешняя стена 375мм соответствует кладке в 1,5 кирпича или из крупноформатной поризованной керамики 10,7NF, внутренняя стена 250мм – кладке в 1 кирпич.

Прямоугольная геометрия дома существенно снижает стоимость строительства 1м² загородного жилья. Мы проектируем экономичные дома с простой архитектурой, прямыми линиями и прямоугольными формами, как в известной рекламе шоколадки Quadratisch, Praktisch, Gut! Любая сложная геометрия дома с выступами фасадов и эркерами существенно увеличивает материалоемкость и стоимость строительства. Для примера, один прямоугольный эркер нерационально увеличивает стоимость 1м² дома: объем стеновых материалов такие же, как у прямоугольного дома, но при этом эксплуатируемая площадь существенно меньше.

Самые популярные проекты серии Эд (FH):
Проект Винта 90
Общая площадь:
90м²
Проект Оптимум 114
Общая площадь:
114м²
Проект дома Статус  115С
Общая площадь:
115м²

Принципы открывания дверей очевидны и логичны для данной планировки с учетом траекторий перемещений людей по дому. 1) Открытие дверей безопасное и не создает конфликтных сценариев: не ударяют проходящих мимо людей, смежные двери, мебель или сантехприборы. 2) Открывая двери, сразу видим основной объем комнаты.

Окна во всех помещениях, панорамные окна в пол и окна-фартуки на кухне - это главные дизайнеры интерьеров в частном доме, которые создают WOW-эффект в загородном доме.

Холл просторный и комфортный с вместительным гардеробом глубиной 70см. Это условно «грязная зона», которая спроектирована так, чтобы лишний раз ее не пересекать и не разносить грязь по дому. На линии движения вход-кухня не должно быть ни одной двери.

Если стоит задача полностью вынести «грязную зону» за периметр дома, то крыльцо можно застеклить, разместить на нем обувницы и для того, чтобы обувь была теплая и зимой, вывести на пол крыльца контур теплого пола.

Вход в котельную из холла является более рациональным и современным решением, чем отдельный вход с улицы: 1) не тратите деньги на 2-ую теплую входную дверь, которая значительно дороже межкомнатной, 2) удобнее попадать в котельную и производить влажную уборку, т.к. делать это нужно также часто, как и в доме, 3) можно организовать дополнительные системы хранения, т.к. для размещения котельного оборудования используется не более 30% площади котельной.

Площадь котельной определена требованиями к объему газовой котельной, которая должна быть не менее 15м³.

Гостевым санузлом пользуются гости, моются руки после улицы.

В спальнях, в отличие от гостиной, не нужно гнаться за большими пространствами, т.к. ее главная функция - это обеспечение здорового микроклимата и психологического комфорта во время отдыха и сна. Или, проще говоря, спальня только для того, чтобы спать. Человек подсознательно ищет для себя уютное, соразмерное пространство.

Эдуард Охильков
Мнение эксперта
Эдуард Охильков
архитектор, инженер-строитель, эксперт

При необходимости любую из спален можно трансформировать под различные сценарии: от детской до гостевой спальни или кабинета.

Оптимальное и рациональное решение – объединение гостиной, столовой и кухни в единое пространство, что визуально и фактически увеличивает объем дома, уменьшая при этом материалоемкость - меньше перегородок, проемов, дверей, отделки и перерасхода материалов.

Баланс планировки дома и гостиной в частности определяется с помощью модульной сетки и осевых линий, которые показывают закономерности в симметрии и эргономике помещений, пустые, бесполезные или перегруженные мебелью зоны, оптимальные расстояния для проходов.

В блоке дневного пребывания выделяются 3 основные зоны: диванная, столовая и терраса.

Проектом предусмотрен большой стол на своем логичном и постоянном месте, где он не будет мешать на основных траекториях движения.

Из зоны столовой предусмотрен выход на террасу по проекту Unit.

Проектом предусмотрена 2х линейная кухня с большим кухонным островом и приставным столом для перекусов. В углу кухни располагается скрытая дверь в постирочную. Между кухней и островом со всех сторон выдержано расстояние не менее 1,2м. Над 1-ой линией расположено панорамное окно, подоконником которого является продолжение столешницы.

Эдуард Охильков
Мнение эксперта
Эдуард Охильков
архитектор, инженер-строитель, эксперт

Отопление дома предполагается теплыми водяными полами, которые самой эффективной и экономичной системой отопления для загородного дома, независимо от того, что будет генерировать тепло: электрический или газовый котел.

Основной тип фундамента, который я рекомендую для дома из газобетона – это классическая монолитная фундаментная плита с ребрами жесткости вверх. Проект возможно адаптировать под строительство на ленточном фундаменте с полами по грунту с учетом геологии конкретного участка.

Задать вопрос эксперту

Email
Вопрос

* — Поля, обязательные для заполнения

This site is protected by reCAPTCHA and the Google Privacy Policy and Terms of Service apply.

Пристройки для проекта дома - Проект Пристройки 4
FH-4 Unit

Представляю вашему вниманию проект FH-4 UNit (от англ. блок, узел, модуль, единица), в состав которого входят 5 универсальных пристроек для дома

Визуализация FH-4 Unit

К проекту Аполлон 190 (FH-190A Apollo) возможно пристроить:

  1. навес для 2х автомобилей
  2. крытая терраса (в т.ч. с финской сауной)
  3. компактный хозблок
  4. вместительный хозблок
  5. крыльцо с плоской крышей

Все указанные пристройки входят в состав проекта универсальных пристроек Unit.

Модульный принцип проектирования, который я пропагандирую, позволяет все перечисленные конструкции пристроить к жилому дому уже после возведения коробки на любом этапе строительства или после ввода дома в эксплуатацию по мере появления денежных средств. Это даёт возможность правильно распределить бюджет, чтобы сначала въехать в отделанный и полностью укомплектованный мебелью и техникой дом, а реализацию второстепенных пристроек оставить на потом. Без данных конструкций жить можно, но они повышают комфорт проживания и ликвидность дома, поэтому предусмотреть их на плане участка – это правильное решение.

Посмотреть проект пристроек
Заявка на строительство дома или покупку проекта

Получить смету / задать вопрос

Мы определили ваш регион как Колумбус. Если место застройки находится в Московской или Ленинградской областях, укажите его в поле сообщения
Номер телефона
E-mail
Сообщение
Если есть свой проект (эскизы)

* — Поля, обязательные для заполнения

Заполняя данную форму, Пользователь даёт согласие на обработку, хранение и использование своих персональных данных на основании ФЗ № 152-ФЗ «О персональных данных» от 27.07.2006 г. в целях получения строительной сметы и консультаций. This site is protected by reCAPTCHA and the Google Privacy Policy and Terms of Service apply.
Проект дома Проект дома