Статья

Лучший проект одноэтажника Avatar 90м2

прочесть за 5 минут дата публикации 06.12.2025г.

Содержание

  1. Общая информация и стоимость проекта
  2. Экспликация помещений
  3. Остальная информация

Представляем вам новый проект одноэтажного дома из газобетона Avatar общей площадью 90м² с 3 спальнями, он имеет рациональную планировку и оптимальную стоимость реализации. В нем все продумано до мелочей для комфортной жизни без избыточных и бесполезных решений.

Общая информация и стоимость проекта

Главная визуализация проекта FH-90A Avatar
  • Внешние размеры дома 11,8м x 9,4м
    (Черновые без учёта отделки фасада)
  • Полезная площадь 90,0м²
    (без учёта площади крыльца и террасы)
  • Количество этажей 1
  • Количество спален 3
  • Серия Аватар (Avatar)

Строительная смета

Цена рассчитана для строительства в Ленинградской области.
Строительная смета бесплатно — без регистрации.
Цена рассчитана для строительства в Московской области.
Строительная смета бесплатно — без регистрации.

Стоимость проекта

Проект Аватар 90М (FH-90A Avatar) (только электронная версия в формате PDF)

9 000 р 36 000 р (акция -75%)

Состав проекта

  1. Общие данные (1 страница);
  2. Поэтажные экспликации помещений (2 страницы соответственно количеству этажей);
  3. План фундамента с закладными под инженерные коммуникации;
  4. Поэтажные кладочные планы (2 страницы соответственно количеству этажей);
  5. Поэтажная аксонометрия (2 страницы соответственно количеству этажей);
  6. План кровли (вид сверху) без прорисовки водосточной системы и вспомогательных элементов крыши (1 страница);
  7. Фасады в черно-белом виде без прорисовки элементов отделки и деталей декора (4 страницы);
  8. Разрез с указанием высотных отметок, размеры оконных и дверных проемов без прорисовки самих окон и дверей (1 страница).

Проект адаптирован для предоставления в основные банки с целью получения ипотеки под строительство частного дома.

Купить проект Построить с нами

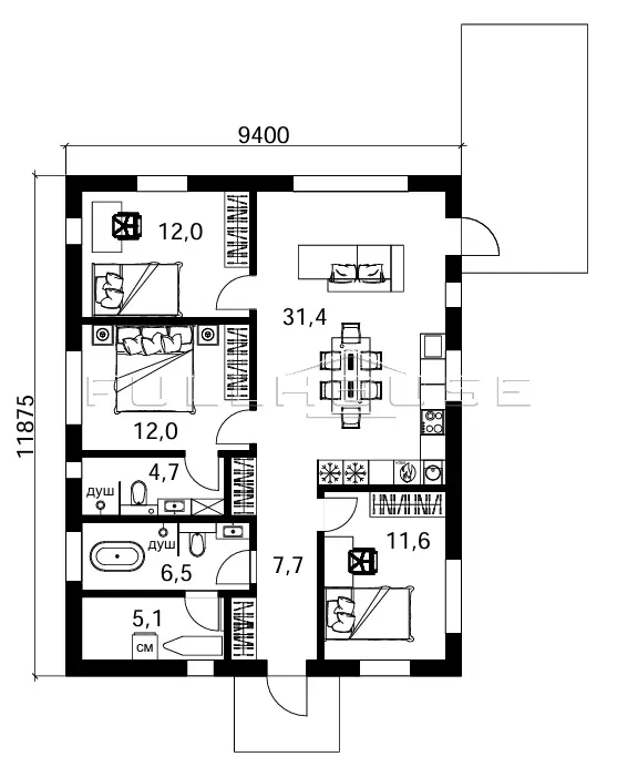
Экспликация помещений

Первый этаж проекта FH-90A Avatar
  1. Холл - 7,7м²
  2. Общая ванная - 6,5м²
  3. Котельная с постирочной - 5м²
  4. 2 детские спальни по 11,6 и 12м²
  5. Мастер-спальня - 12м² с приватной ванной - 4,7м²
  6. Единое пространство гостиная-кухня-столовая - 31,4м²

Другие проекты серии Аватар (Avatar)

Проект Фурор 114М
Готовится к продаже
Общая площадь:
114м²
Характеристики:
1 этаж; 3 спальни
Купить проект за:
9 000 р.
Построить за:
7 128 152 р.
Проект Лайнер 114
Готовится к продаже
Общая площадь:
114м²
Характеристики:
1 этаж; 4 спальни
Купить проект за:
9 000 р.
Построить за:
7 132 524 р.
Смотреть все проекты серии

В проекте Avatar количество и площадь транзитных зон максимально уменьшена в пользу активных для рационального использования всей площади дома. Процентное соотношение зон в проекте следующее: жилые 74%, технические 18%, транзитные 8%.

Все мокрые зоны максимально локализованы в углу дома для оптимизации расходов по разводке сантехнических труб. Предусмотрено достаточное количество зон хранения без учета систем хранения на кухне и в уличных хозблоках.

Перед выбором проекта своего будущего дома всегда задавайте вопрос: зачем мне нужен каждый м²? Метры, наличие которых вы не можете аргументированно обосновать, лишние, а их строительство нерациональное. Сэкономленные деньги лучше потратить на качественную отделку, мебель и бытовую технику. Ошибка большинства застройщиков заключается в больших амбициях, несоответствующих их финансовым возможностям, и превращение красивой загородной жизни в вечный долгострой!

Дом должен быть ликвидным, соответствовать потребностям семьи и не создавать финансовой нагрузки. Большие по площади дома требуют пропорционально более высоких расходов на строительство, инженерные и отделочные работы, комплектацию мебелью и техникой.

Данный проект можно легко разместить на небольших участках площадью от 6 соток с соблюдением всех нормативных расстояний.

Эдуард Охильков
Мнение эксперта
Эдуард Охильков
архитектор, инженер-строитель, эксперт

Длина внешних стен и простенков между оконными и дверными проемами кратна стандартной длине газобетонных блоков 625мм. Для стены 11,8м нужно ровно 19 блоков, для стены 9,4м - 15 блоков.

Прямоугольная геометрия дома существенно снижает стоимость строительства 1м² загородного жилья. «Линейная архитектура» - проектирование экономичных домов с простой архитектурой, прямыми линиями и прямоугольными формами, как в известной рекламе шоколадки Quadratisch, Praktisch, Gut! Любая сложная геометрия дома с выступами фасадов и эркерами существенно увеличивает материалоемкость и стоимость строительства. Для примера, один прямоугольный эркер нерационально увеличивает стоимость 1м² жилья: объем стеновых и кровельных материалов такие же, как у прямоугольного дома, но при этом жилая площадь существенно меньше.

Самые популярные проекты серии Эд (FH):
Проект Винта 90
Общая площадь:
90м²
Проект Оптимум 114
Общая площадь:
114м²
Проект дома Статус  115С
Общая площадь:
115м²

Принципы открывания дверей очевидны и логичны для данной планировки, что исключает конфликтные сценарии: не ударяют проходящих мимо людей, смежные двери, мебель или сантехприборы, открывая двери, сразу видим основной объем комнаты.

Окна во всех помещениях, панорамные окна в пол и окно-фартук на кухне - это главные дизайнеры интерьеров в загородном доме, которые создают WOW-эффект. Не забывайте о том, что за город человек перебирается, чтобы быть ближе к природе, а вид на природу через панорамные окна бесценен. Если вы все-таки адепты стандартных окон с подоконниками, то проект позволяет это сделать.

При входе в дом открывается вид на свет через панорамное окно гостиной. Холл просторный и комфортный для нахождения в нем одновременно 4 человек, с двумя гардеробными шкафами. На линии движения вход-кухня не должно быть ни одной двери.

Если стоит задача полностью вынести «грязную зону» за периметр дома, то крыльцо можно застеклить, разместить на нем обувницы и для того, чтобы обувь была теплая и зимой, вывести на крыльцо контур теплого пола.

Вход в котельную из ванной является более рациональным и современным решением, чем отдельный вход с улицы: 1) не тратите деньги на 2-ую теплую входную дверь, которая значительно дороже межкомнатной, 2) удобнее попадать в котельную и производить влажную уборку, т.к. делать это нужно также часто, как и в доме.

Площадь котельной 5м² при высоте потолков 3м определена требованиями к объему газовой котельной, что составляет не менее 15м³. Поскольку котельное оборудование занимает не более 25% от площади стен в котельной, в данном помещении можно разместить дополнительные системы хранения, стиральную и сушильную машину в колонну.

В ванной разместились: отдельно стоящая ванна 160см перед панорамным окном в пол, душевая зона, раковина 80см, инсталляция, простенок для размещения полотенцесушителя или теплой стены.

Эдуард Охильков
Мнение эксперта
Эдуард Охильков
архитектор, инженер-строитель, эксперт

2 детские спальни легко вмещают: 1) Кровать, 2) Учебный стол, 3) Гардеробный шкаф глубиной 60см, 3) Остаются комфортные проходы вокруг кровати.

Мастер-спальня со своей приватной ванной, в которой разместилась комфортная душевая, инсталляция, раковина 80см и шкаф.

В спальне, в отличие от гостиной, не нужно гнаться за большими пространствами, т.к. ее главная функция - это обеспечение здорового микроклимата и психологического комфорта во время отдыха и сна. Проще говоря, спальня только для того, чтобы спать. Человек подсознательно ищет для себя уютное, соразмерное пространство.

При необходимости любую из спален можно трансформировать под различные сценарии: от детской до гостевой спальни или кабинета. Расположение шкафов в спальнях вдоль стен, создает дополнительный акустический комфорт.

Оптимальное и рациональное решение - объединение гостиной, столовой и кухни в одно пространство, что визуально и фактически увеличивает объем дома, уменьшая при этом материалоемкость - меньше перегородок, проемов, дверей, отделки, а значит снижаете стоимость реализации проекта.

Баланс планировки дома и гостиной в частности определяется с помощью модульной сетки и осевых линий, которые показывают закономерности в симметрии и эргономике помещений, пустые, бесполезные или перегруженные мебелью зоны, оптимальные расстояния для проходов.

Перед диваном располагается панорамное окно в пол шириной 2,7м.

Проектом предусмотрен большой стол на своем логичном и постоянном месте, где он не будет мешать на основных траекториях движения. Из зоны гостиной-столовой можно выйти на террасу по проекту Unit.

Проектом предусмотрена 2х линейная кухня. Длина 1-й линии с кухонной столешницей 3м и с 5 нижними шкафчиками шириной по 60см; длина 2-й линии 2,4м с 4 пеналами шириной по 60см. В пеналах встроена бытовая техника, а также системы хранения. Между кухней и столом со всех сторон выдержано расстояние не менее 1,2м. Над 1-ой линией проектом предусмотрено панорамное окно, подоконником которого является продолжение столешницы.

Указанные размеры являются оптимальными для частного дома и дают возможность устанавливать не только индивидуальные, но и типовые кухни. Если проектировать больше, то это, как правило, уже избыточно и бесполезно. Лучше грамотно организовать данное пространство.

Отопление дома предполагается теплыми водяными полами, которые самой эффективной и экономичной системой отопления для загородного дома, независимо от того, что будет генерировать тепло: электрический или газовый котел.

Основной тип фундамента, который я рекомендую для дома из газобетона - это классическая монолитная фундаментная плита с ребрами жесткости вверх. Проект возможно адаптировать под строительство на ленточном фундаменте с полами по грунту с учетом геологии конкретного участка.

Задать вопрос эксперту

Email
Вопрос

* — Поля, обязательные для заполнения

Этот сайт защищён с помощью Yandex SmartCaptcha

Пристройки для проекта дома - Проект Пристройки 4
FH-4 Unit

Представляю вашему вниманию проект FH-4 UNit (от англ. блок, узел, модуль, единица), в состав которого входят 5 универсальных пристроек для дома

Визуализация FH-4 Unit

К проекту Аватар 90М (FH-90A Avatar) возможно пристроить:

  1. навес для 2х автомобилей
  2. крытая терраса (в т.ч. с финской сауной)
  3. компактный хозблок
  4. вместительный хозблок
  5. крыльцо с плоской крышей

Все указанные пристройки входят в состав проекта универсальных пристроек Unit.

Модульный принцип проектирования, который я пропагандирую, позволяет все перечисленные конструкции пристроить к жилому дому уже после возведения коробки на любом этапе строительства или после ввода дома в эксплуатацию по мере появления денежных средств. Это даёт возможность правильно распределить бюджет, чтобы сначала въехать в отделанный и полностью укомплектованный мебелью и техникой дом, а реализацию второстепенных пристроек оставить на потом. Без данных конструкций жить можно, но они повышают комфорт проживания и ликвидность дома, поэтому предусмотреть их на плане участка – это правильное решение.

Посмотреть проект пристроек
Заявка на строительство дома или покупку проекта

Получить смету / задать вопрос

Мы определили ваш регион как Колумбус. Если место застройки находится в Московской или Ленинградской областях, укажите его в поле сообщения
Номер телефона
E-mail
Сообщение
Если есть свой проект (эскизы)

* — Поля, обязательные для заполнения

Заполняя данную форму, Пользователь даёт согласие на обработку, хранение и использование своих персональных данных на основании ФЗ № 152-ФЗ «О персональных данных» от 27.07.2006 г. в целях получения строительной сметы и консультаций. Этот сайт защищён с помощью Yandex SmartCaptcha
Проект дома Проект дома