Статья

Лучший проект одноэтажного дома 114м2 с плоской крышей

прочесть за 12 минут дата публикации 31.01.2023г.

Содержание

  1. Общая информация и стоимость проекта
  2. Экспликация помещений
  3. Остальная информация

Проект одноэтажного дома из газобетона с плоской крышей FOURex Villa в современном стиле с плоской крышей общей площадью 114м², с гостиной от 31,5м² и 4 спальнями. Проект отличает архитектура современного минимализма, изолированный блок из 2х спален со своей ванной комнатой, наличие всех необходимых функциональных помещений в доме, комфортные и рациональные планировки, экономичная реализация.

Общая информация и стоимость проекта

Главная визуализация проекта FH-115 FOURex Villa
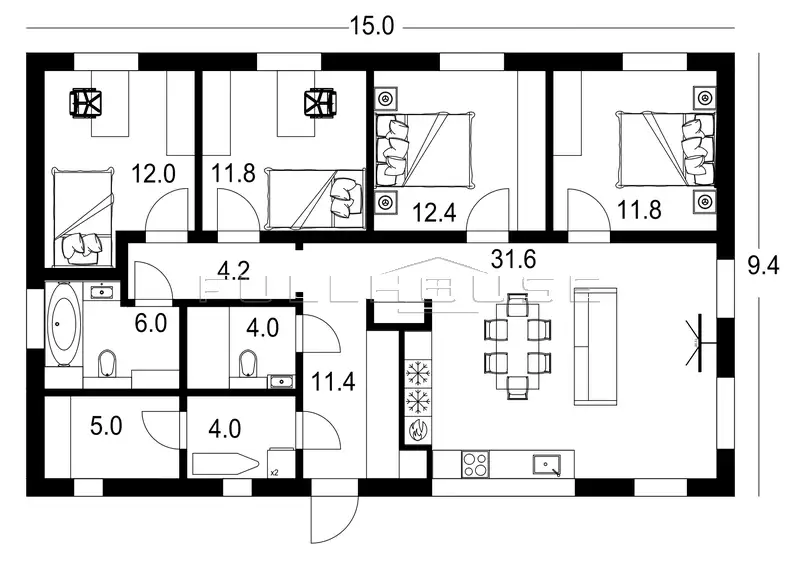
  • Внешние размеры дома 15,0м x 9,4м
    (Черновые без учёта отделки фасада)
  • Полезная площадь 115,0м²
    (без учёта площади крыльца и террасы)
  • Количество этажей 1
  • Количество спален 4
  • Серия Фора (FOURex)

Строительная смета

Цена рассчитана для строительства в Ленинградской области.
Строительная смета бесплатно — без регистрации.
Цена рассчитана для строительства в Московской области.
Строительная смета бесплатно — без регистрации.

Стоимость проекта

Проект Фора 115П (FH-115 FOURex Villa) (только электронная версия в формате PDF)

9 000 р 36 000 р (акция -75%)

Состав проекта

  1. Общие данные (1 страница);
  2. Поэтажные экспликации помещений (2 страницы соответственно количеству этажей);
  3. План фундамента с закладными под инженерные коммуникации;
  4. Поэтажные кладочные планы (2 страницы соответственно количеству этажей);
  5. Поэтажная аксонометрия (2 страницы соответственно количеству этажей);
  6. План кровли (вид сверху) без прорисовки водосточной системы и вспомогательных элементов крыши (1 страница);
  7. Фасады в черно-белом виде без прорисовки элементов отделки и деталей декора (4 страницы);
  8. Разрез с указанием высотных отметок, размеры оконных и дверных проемов без прорисовки самих окон и дверей (1 страница).

Проект адаптирован для предоставления в основные банки с целью получения ипотеки под строительство частного дома.

Купить проект Построить с нами

Экспликация помещений

Первый этаж проекта FH-115 FOURex Villa
  1. Холл
  2. Котельная
  3. Ванная
  4. Душевая с туалетным блоком
  5. Постирочная для планировок Традиционная и Европейская.
  6. 4 спальни
  7. Единое пространство гостиная-кухня-столовая

Другие проекты серии Фора (FOURex)

Проект ДОМаск 115С
купили 12
Общая площадь:
115м²
Характеристики:
1 этаж; 3 спальни
Купить проект за:
9 000 р.
Построить за:
6 970 014 р.
Проект Фора 114
купили 33

FH-114 FOURex Full Проект Фора 114

Общая площадь:
114м²
Характеристики:
1 этаж; 4 спальни
Купить проект за:
9 000 р.
Построить за:
6 983 221 р.
Проект Фора 115
купили 46

FH-115FX FOURex Проект Фора 115

Общая площадь:
115м²
Характеристики:
1 этаж; 4 спальни
Купить проект за:
9 000 р.
Построить за:
7 010 438 р.
Смотреть все проекты серии

Проект дома с плоской крышей FOURex Villa в настоящее время уже успешно продается и активно реализуется. В продаже есть 3 основные планировки: Традиционная, Европейская и Full.

Холл

Холл с вместительным гардеробом просторный и комфортный для нахождения в нем одновременно 4 взрослых людей. Это условно «грязная зона», поэтому она спроектирована так, чтобы лишний раз ее не пересекать и не разносить грязь по дому. На линии движения вход-кухня не должно быть ни одной двери. Но проектом предусмотрена возможность установки двери для полного изолирования холла от остальной части дома.

Котельная

Вход в котельную из постирочной является более рациональным и современным решением, чем отдельный вход с улицы: 1) не тратите деньги на 2-ую теплую входную дверь, которая значительно дороже межкомнатной, 2) хозяйке удобнее попадать в котельную и производить влажную уборку, т.к. делать это нужно также часто, как и в доме, 3) не нужно расширять крыльцо и соответственно навес под наружную дверь для котельной.

Площадь котельной 5м² определена требованиями к объему газовой котельной, что составляет 15м³. Кроме того, для такой котельной обязательным является наличие окна и естественной вентиляции на крышу.

Постирочная

В постирочной для планировок Традиционная и Европейская размещается все самое необходимое: 1) Стиральная и сушильная машины, которые в целях рационального использования площади лучше располагать друг над другом в колонну через специальный переходник. 2) Техническая раковина. 3) Системы хранения для бытовой химии, белья, гладильной доски и утюга.

Ванная

В ванной помещается все самое необходимое: ванна 180см, раковина 80см, инсталляция, комфортная душевая и простенок для размещения крючков для халатов и полотенцесушителя. Окно служит для залпового проветривания и естественного освещения, поэтому вы будете реже включать свет. В гостевом санузле разместилась комфортная душевая зона, инсталляция и раковина. Существует возможность реализации модификации проекта с комфортной финской сауной внутри дома.

Спальни

4 спальни площадью около 12м² легко вмещают: 1) Двуспальную кровать 180см с прикроватными тумбами. 2) Гардеробный шкаф глубиной 60см. 3) Остаются комфортные проходы вокруг кровати. В спальне, в отличие от гостиной, не нужно гнаться за большими пространствами, т.к. ее главная функция - это обеспечение здорового микроклимата и психологического комфорта во время отдыха и сна. Или, проще говоря, спальня только для того, чтобы спать. Человек подсознательно ищет для себя уютное, соразмерное пространство.

Площади спален соразмерны с площадью гостиной и рассчитаны с помощью обратного числа золотого сечения φ=0,618. Так, для гостиной 31,5м² спальня должна иметь площадь 12м² из следующей формулы: 31,5-(31,5*φ). Если упростить формулу, то пропорция спальни к гостиной составит 1:3.

Еще одна закономерность: комфортное пространство для сна стремится к размерам куба. При высоте потолков 3м и длине сторон 3 х 4м, где часть пространства отдается гардеробному шкафу, мы получаем этот самый куб. Что и следовало доказать: оптимальная площадь спальни равняется 12м².

Самые популярные проекты серии Эд (FH):
Проект Винта 90
Общая площадь:
90м²
Проект Оптимум 114
Общая площадь:
114м²
Проект дома Статус  115С
Общая площадь:
115м²

При необходимости любую из 4х спален можно трансформировать под различные сценарии: от комнаты для ребенка до гостевой спальни или кабинета. Расположение шкафов в спальнях вдоль стен, создает дополнительный акустический комфорт. Проектом предусмотрена возможность максимально изолировать 2 дальние спальни с помощью дополнительной двери, которые могут быть детскими. Полной информацией по звукоизоляции в доме из газобетона, в т.ч. в случае подобных планировок, где вход в спальни непосредственно из гостиных, я поделюсь в 3х видео роликах про строительную акустику, которые опубликую в этом сезоне.

Эдуард Охильков
Мнение эксперта
Эдуард Охильков
архитектор, инженер-строитель, эксперт

Модификацию проекта FOURex Full Villa отличает от 2х других вариантов планировок то, что в нем все 4 спальни изолированы от гостиной.

Гостиная, столовая, кухня

Оптимальное и рациональное решение – объединение гостиной, столовой и кухни в одно единое пространство, что визуально и фактически увеличивает объем дома, уменьшая при этом материалоемкость - меньше перегородок, проемов, дверей, отделки и перерасхода материалов. А для тех, кто еще боится такого open space - современные вытяжки легко удаляют все кухонные запахи. В гостиной предусмотрены панорамные окна в пол. Для тех, кто предпочитает стандартные окна с подоконниками, проект позволяет доложить блоки до подоконников.

Площади гостиных для разных планировок следующие: для традиционной 31,6м², для Европейской 34,5м², и самая большая гостиная для варианта Full 37м².

Правила проектирования гостиной

Планировка дома разработана с учетом логики перемещений по дому, математических закономерностей, оптимальных объемов, симметрии и пропорций. Все эти знания я сформулировал в виде следующих простых правил:

  1. Правило осевых линий. Для этого в планировочной программе создаем несколько параллельных и перпендикулярных линий, с помощью которых находим закономерности в симметрии и эргономике жилой комнаты с учетом расположения мебели, оптимальных расстояний для проходов и перемещений, в том числе для создания светотехнического проекта.
  2. Правило равновесия комнаты. Для этого комнату с крупногабаритной мебелью представляем в виде плоскости с равновесным центром посередине, чтобы определить наличие пустых или перегруженных зон. В проекте FOURex Villa равновесие не нарушено.
  3. Правило связки. Проектирование фасада дома происходит в единой связке с расстановкой крупногабаритной мебели и сантехнических приборов, а также с проектированием окон. Размеры и симметрия расположения окон определяется только по фасаду и ни в коем случае не изнутри помещений. Положение окон определяет место для установки мебели и наоборот, поэтому проектировать одно без другого ошибочно. Если вы выбираете проект дома, где на плане нет рекомендуемой расстановки мебели, то лучше ищите другие проекты, где мебель обозначена, чтобы избежать в будущем проблем при проектировании и расстановки мебели после строительства дома.
  4. Правило ракурсов. Положение мебели в гостиной, спальне, столовой и на кухне является отправным для будущего ландшафтного проектирования. Для этого определяем основные точки созерцания, которые соответствуют проекциям головы человека. Проводим от каждой точки по 2 линии по краям оконных откосов. В зоне пересечения 2х линий будут располагаться основные ландшафтные композиции.
  5. Правило фокусов. От экрана ТВ диван располагается в среднем на расстоянии 2,4м, которое может меняться в зависимости от диагонали телевизора. Располагая телевизор на внешней стене, я предлагаю для сидящих на диване сразу несколько фокусов внимания: 1) Непосредственно сам телевизор. 2) Биокамин, который можно расположить под ТВ, или дровяной камин справа или слева, если он предусматривается проектом. 3) Вид на окружающий садовый или природный ландшафт через панорамные окна в пол. По этой причине размещать диван спинкой к панорамному окну в загородном доме – это дизайнерское преступление!

Столовая

Проектом предусмотрен большой стол на своем логичном постоянном месте, где он не будет мешать траекториям движения, с оптимальными размерами 2х1м, за которым с комфортом могут разместиться 8 человек: например, семья из 4х человек с бабушками и дедушками. А больше и не нужно, т.к. современный ритм жизни такой, что мы чаще встречаемся со знакомыми и друзьями в ресторанах, чем дома.

Кухня

Проектом предусмотрена 2х линейная кухня. Длина 1-й линии с кухонной столешницей 3м и с 5 нижними шкафчиками шириной по 60см; длина 2-й линии 2,4м с 4 пеналами шириной по 60см. В пеналах встроена бытовая техника – микроволновая и духовая печи, холодильник и морозильник. Между кухней и столом выдержано расстояние не менее 1,2м. Над 1-ой линией проектом предусмотрено панорамное окно, подоконником которого является продолжение столешницы. Если вы хотите к проекту добавить верхние шкафчики, то можете уменьшить высоту окна до размеров фартука.

Данные размеры дают возможность устанавливать не только индивидуальные, но и типовые кухни. Это оптимальные размеры кухни. Если проектировать больше, то это, как правило, уже избыточно и бесполезно. Лучше грамотно организовать данное пространство. Угловой элемент в кухне исключен, т.к. он неудобный и самый дорогой. Данное решение подсказано итальянскими дизайнерами, которые в Г-образной кухне угол «зашивают» стеновыми или отделочными материалами. В проекте FOURex Villa это решение доработано и пространство в углу не пропадает, а рационально используется, например, для организации со стороны холла системы хранения или для размещения электрического щита, интернет оборудования и стабилизаторов.

Проект кухни имеет комфортные зоны, по которым происходит перемещение в строгой и логичной последовательности: а. зона хранения (шкаф-пенал, холодильник, морозильник) → б. зона мойки с раковиной, с местами хранения корзины для мусора, аксессуаров и бытовой химии → в. рабочая зона (зона резки и подготовки продуктов) → г. зона приготовления (варочная панель, духовой шкаф, микроволновка) → д. зона паркинга мелкой бытовой техники. Последовательность зон, вы можете определить индивидуально при заказе кухни - на архитектурный проект это никак не влияет.

Двери

Принципы открывания дверей очевидны и логичны для данной планировки с учетом траекторий перемещений людей по дому. 1) Открытие дверей безопасное и не создает конфликтных сценариев: не ударяют проходящих мимо людей, смежные двери, мебель или сантехприборы. 2) Открывая двери, входящий сразу видит основной объем комнаты.

Максимум полезной площади

В проекте FOURex Villa количество и площадь транзитных зон максимально уменьшена в пользу активных для рационального использования всей площади дома. В планировках Традиционная и Европейская процентное соотношение жилых комнат к нежилым 70:30, активных зон к транзитным 88:12. В планировке Full соотношение жилых комнат к нежилым наиболее рациональное 75:25.

Эдуард Охильков
Мнение эксперта
Эдуард Охильков
архитектор, инженер-строитель, эксперт

Все мокрые зоны максимально локализованы в углу дома. Проектом предусмотрено достаточное количество зон хранения для семьи из 5-6 человек, без учета систем хранения на кухне и в уличных хозблоках.

Из статистики за 2022 год от самых разных компаний и с выставок загородного жилья самыми популярными проектами являются одноэтажные дома с общей площадью от 90 до 115м². При строительстве жилого дома нужно понимать, что это не только непосредственно жилье, но и надежная инвестиция ваших денег. Поэтому реализация именно таких проектов является наиболее ликвидной, т.к. на рынке загородной недвижимости на одноэтажные дома малой площади есть и всегда будет большой спрос. В настоящее время качественно построенные одноэтажные дома от 90м² до 115м² продаются, как горячие пирожки.

Перед выбором проекта своего будущего дома всегда задавайте вопрос: зачем мне нужен каждый м²? Метры, наличие которых вы не можете аргументированно обосновать - лишние, а их строительство - нерациональное. Сэкономленные деньги лучше потратить на качественную отделку, мебель и бытовую технику. Ошибка большинства застройщиков заключается в больших амбициях, несоответствующих финансовым возможностям и превращение красивой загородной жизни в вечный долгострой! Стройте оптимальный по площади дом и живите в нем сейчас!

Предлагаемая планировка оптимальная и комфортная для семьи из 5-6х человек с 2-3 детьми, что уже доказано опытом проживания в домах серии FOURex многими семьями. Перед тем, как критиковать данную планировку, оцените насколько максимально выжато полезной площади из 114м² и сколько далее в ролике будет мною предложено архитектурных решений ради экономии вашего кошелька. Для кого-то я возможно открою тайну, что мне, как строителю, как раз интереснее строить максимально большие и нерациональные по площади дома. Поэтому я благодарен той части аудитории, которая ценит мой опыт, мои уникальные знания, архитектурные и строительные решения, которыми я делюсь в интересах прежде всего заказчиков строительства.

Разумеется, найдутся амбициозные зрители, кому не будет хватать кладовки, мастер-спальни, гардеробной, еще одной спальни или ванной. В таком случае, вам либо нужно выбрать типовой проект серии FH большей площади или разработать индивидуальный, где будут все функциональные помещения и той площади, которые вы хотите. Только перед тем, как выбрать проект больших размеров или приступать к индивидуальному проектированию, оцените свои финансовые возможности. Сможете ли вы реализовать хотя бы такие строительные объемы, чтобы довести свою мечту до финишной реализации, а не тратить свои силы, нервы, время и деньги на вечный долгострой с домом большой площади, но со всеми своими хотелками. Или остается третий вариант: продолжать жить в городской квартире, где нет ни кладовых, ни мастер-спален, ни гардеробных комнат.

Построенные объекты по проекту Фора 115П (FH-115 FOURex Villa) и серии Фора (FOURex)
Всего по проекту Фора 115П (FH-115 FOURex Villa) и серии Фора (FOURex) построено 4 объекта

Мною выведена простая формула для определения стоимости реализации проектов под ключ с с простой, прямоугольной геометрией. Умножив итоговую сметную стоимость на 2,5, вы получите близкую к реальности стоимость строительства дома под ключ при условии выбора адекватных по стоимости брендов: со всей инженерией, встроенной бытовой техникой, корпусной и мягкой мебелью и даже с занавесками. При условии, что вы построите дом за 1 год, т.к. чем больше вы будете затягивать окончание строительства, тем больше вы потратите денег в конечном итоге из-за ежегодного роста цен на все.

Принцип растра

Внешние стены по проекту FOURex Full разработан в растре газобетонных блоков, что значит кратно их стандартным размерам. Использование данного принципа упрощает кладку и позволяет значительно снижать материалоемкость, а соответственно и стоимость строительства дома. Общая длина внешних стен и простенков между оконными и дверными проемами кратна стандартной длине газобетонных блоков 625мм. Для стены 15м нужно ровно 24 блоков, для стены 9,4м – 15 блоков с учетом швов. Проект можно легко адаптировать для регионов, где производятся блоки длиной 600мм.

Внешние и внутренние несущие стены имеют такую толщину, которая позволяют возводить их как из газобетона, так и из кирпича. Толщина внешней стены 375мм соответствует кирпичной кладке в 1,5 кирпича или поризованной керамике формата 10,7NF, а внутренняя стена 250мм – кладке в 1 кирпич.

Принцип чистых линий

Прямоугольная геометрия дома также направлена на снижение стоимости строительства за 1 кв.м. загородного жилья. Принцип чистых линий, который я вам предлагаю – это проектирование экономичных домов с простой архитектурой, а именно с прямыми линиями и прямоугольными формами, как в известной рекламе шоколадки: Quadratisch, Praktisch, Gut. Любая сложная геометрия дома с выступами фасадов и эркерами, существенно увеличивает материалоемкость и стоимость строительства. Например, у дома с одним прямоугольным эркером и дома с простой прямоугольной геометрией объем стеновых и кровельных материалов одинаковые, но при этом площадь дома больше у прямоугольного. Поэтому стоимость строительства 1м² дома с эркером будет существенно выше.

Задать вопрос эксперту

Email
Вопрос

* — Поля, обязательные для заполнения

Этот сайт защищён с помощью Yandex SmartCaptcha

Пристройки для проекта дома - Проект Пристройки 4
FH-4 Unit

Представляю вашему вниманию проект FH-4 UNit (от англ. блок, узел, модуль, единица), в состав которого входят 5 универсальных пристроек для дома

Визуализация FH-4 Unit

К проекту Фора 115П (FH-115 FOURex Villa) возможно пристроить:

  1. навес для 2х автомобилей
  2. крытая терраса (в т.ч. с финской сауной)
  3. компактный хозблок
  4. вместительный хозблок
  5. крыльцо с плоской крышей

Все указанные пристройки входят в состав проекта универсальных пристроек Unit.

Модульный принцип проектирования, который я пропагандирую, позволяет все перечисленные конструкции пристроить к жилому дому уже после возведения коробки на любом этапе строительства или после ввода дома в эксплуатацию по мере появления денежных средств. Это даёт возможность правильно распределить бюджет, чтобы сначала въехать в отделанный и полностью укомплектованный мебелью и техникой дом, а реализацию второстепенных пристроек оставить на потом. Без данных конструкций жить можно, но они повышают комфорт проживания и ликвидность дома, поэтому предусмотреть их на плане участка – это правильное решение.

Посмотреть проект пристроек
Заявка на строительство дома или покупку проекта

Получить смету / задать вопрос

Номер телефона
E-mail
Сообщение
Если есть свой проект (эскизы)

* — Поля, обязательные для заполнения

Заполняя данную форму, Пользователь даёт согласие на обработку, хранение и использование своих персональных данных на основании ФЗ № 152-ФЗ «О персональных данных» от 27.07.2006 г. в целях получения строительной сметы и консультаций. Этот сайт защищён с помощью Yandex SmartCaptcha
Проект дома Проект дома