Данный проект вариативный, т.е. в существующих границах внешних стен может быть предложено 4 основных варианта планировок без учета зеркальных, один из которых обязательно подойдет для конкретного участка. В проекте есть якорные помещения и конструкции, форма и размеры которых остаются неизменными в разных вариантах планировок. Это холл, технические помещения, гостевая спальня, кухня, расположение и размеры большинства окон.
И… проект трансформируемый, т.е. можно выбирать планировку, например, жилой комнаты под разные сценарии, которая может меняться от спальни для ребенка и подростка до гостевой комнаты или кабинета, и наоборот.
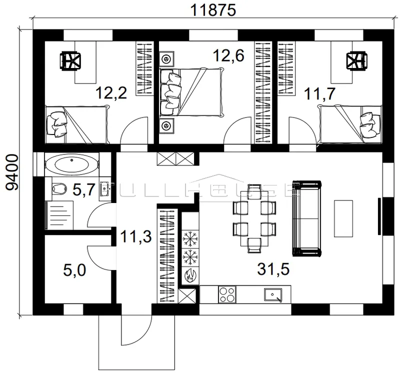
Варианты планировок и в чем их отличие
- Традиционный с угловым расположением кухни-гостиной, более привычный для россиян.
![]()
- Европейский с центральным расположением кухни-гостиной, слева от которой находятся холл, котельная, ванная и гостевая комната, а справа две спальни. Такой вариант планировки больше характерен для европейских проектов.
![]()
2-ой европейский вариант отличают следующие особенности:
- Общее пространство кухни-гостиной на 3м² больше традиционного варианта.
- Столовая находится посередине, четко разделяя единое пространство на зону гостиной и зону кухни. При этом такое расположение обеденного стола не мешает перемещению людей по дому.
- Пространство кухни сравнительно больше, что позволяет добавить к ней остров или барную стойку.
- В данном варианте можно увеличить высоту потолка до 4х метров за счет применения конструкции стропильных ферм над кухней-гостиной, называемых «ножницами».
Количество и площадь транзитных зон максимально уменьшена в пользу активных зон для рационального использования всей площади дома. Процентное соотношение жилых к нежилым комнатам в проекте Windows 75:25, а процентное соотношение активных зон, включая жилые комнаты, ванную и постирочную к транзитной зоне 90:10. Все условно «мокрые» помещения: котельная-постирочная, ванная и кухня находятся в одном углу для локализации систем канализации и водоснабжения. Кроме того, в проекте предусмотрено достаточное количество зон хранения (шкафы и гардеробы).
Реализацию проекта Windows я предлагаю в 2х премиальных архитектурных стилях: «стиль прерий» Фрэнка Ллойда Райта и современный минимализм с плоской крышей. По стоимости реализации под ключ дом с плоской кровлей из ПВХ мембраны будет значительно дешевле дома в стиле Райта. Но, как показывает практика, большинство россиян предпочитают классическую архитектуру. Поэтому разбор проекта будет осуществляться для дома в стиле Райта. Одна из задач этого проекта - размыть неравенство между классами загородного жилья, т.к. считаю, что каждый человек и семья должны жить в лучшем доме - качественном, комфортном, с крутой архитектурой и интерьером.
Достаточно ли 90 квадратов для загородной жизни?
Однозначно – да! Комфорт и ликвидность проекта дома зависит не столько от площади, сколько от его грамотной планировки, эргономики пространства и качественного наполнения, как это реализовано в проекте Windows. Перед выбором проекта всегда задавайте себе вопрос: зачем мне эти м²? Не стремитесь строить дома с большой площадью, не ответив себе: для чего мне нужен каждый квадратный метр? Квадратные метры, наличие которых вы не можете аргументированно обосновать, - лишние, а их строительство - нерациональное. Сэкономленные деньги лучше потратить на качественную отделку, мебель и бытовую технику. Ошибка большинства застройщиков заключается в больших амбициях, несоответствующих финансовым возможностям и превращение красивой загородной жизни в вечный долгострой! Стройте оптимальный по площади дом и живите сейчас!
Основной принцип выбора строительных технологий для данного проекта: всё сложное ненужно, всё нужное – просто. Наилучшие и качественные строительные материалы, надежные конструктивные узлы и решения, низкая материалоемкость дома, - все это применено в данном проекте и что в комплексе снижает затраты на строительство при максимально качественном результате. В проекте только простые и понятные конструкции, «пироги», конструктивные узлы, примыкания – это значит меньше ошибок, снижается человеческий фактор, повышается защита от кривых рук, проще контролировать качество работ. При отделке фасада используются только минеральные и стабильные по геометрии и цвету материалы: кирпич, штукатурка, цокольный камень, фиброцементные панели под дерево, стальной сайдинг для подшива свесов.
Почему прямоугольная форма дома?
Любая сложная геометрия дома с выступами фасадов и эркерами, существенно увеличивает материалоемкость и стоимость строительства. Для примера, один прямоугольный эркер нерационально увеличивает стоимость 1м² дома: объем стеновых и кровельных материалов такие же, как у прямоугольного дома, но при этом площадь дома существенно меньше.
Почему именно такие линейные размеры: 11,88м х 9,4м?
Большинство проектировщиков совершают одну и ту же ошибку, выбирая произвольные размеры дома с целыми значениями: 10х10м, 12х14м и т.п., что значительно повышает материалоемкость и стоимость строительства, которое производится не в растре строительных материалов. В растре – значит кратно стандартным размерам блоков, кратно длине арматурных хлыстов и пиломатериалов. Поэтому меньше обрезков блочных материалов, нет перехлестов арматуры, меньше дополнительных работ. Проект Windows разработан в растре основных строительных материалов. Подробнее об этом
Черновой линейный размер 11,88м определен следующими параметрами:
- Стандартная длина рабочей арматуры для фундамента составляет 11,7м. Не 12м, как многие считают, а именно 11,7м, что определяется характеристиками стана на заводе, который нарезает арматурные хлысты. Плюс защитный слой бетона + 8см (по 4см с каждой стороны); плюс свес газобетонных блоков + 10см (по 5см с каждой стороны) для утепления цокольной части фундамента и отделки его заподлицо с фасадом без последующего монтажа цокольного капельника. Итого: 11,7м + 8см + 10см = 11,88м. Т.о. продольная арматура в каркасе фундаментной плиты лежит цельная без перехлестов, ее не нужно пилить, нет расхода на пильные диски.
- Кладка стены из газобетона кратно блокам, стандартная длина которых 625мм. На стену длиной 11,88м нужно ровно 19 блоков с учетом швов.
Черновой линейный размер 9,4м определен следующими параметрами:
- Кратностью блоков из газобетона. На стену длиной 9,4м нужно ровно 15 блоков с учетом швов.
- Кратностью пиломатериалов для стропил. Длина стропил в проекте Windows составляет 6м, что соответствует стандартной длине доски и бруса.
- Минимально комфортными линейными размерами жилых комнат.
Обрезки арматуры длиной 2,48м используются для перемычек над оконными и дверными проемами, для строительства фундамента крыльца, а также для устройства монолитной консоли под облицовочную кладку.
Обращаю внимание, что указанные линейные размеры являются черновым, без учета внешней отделки. По всем сторонам дома кладка кратно стандартным размерам облицовочного кирпича.
Угол крыши 15° и широкий свес 1м определен следующими параметрами:
- Это характерные приемы для архитектурного стиля Райта – малый угол крыши и широкие свесы.
- Согласно СНиП минимальный угол наклона кровли из металлочерепицы, если длина ската 6 метров, должен быть не менее 14 градусов. В проекте Windows длина стропил 6м, угол наклона 15°. Уменьшая угол наклона, мы уменьшаем площадь крыши и соответственно ее материалоемкость.
- Площадь крыши по проекту Windows составляет 175м². И ровно такая же площадь будет для традиционной крыши со следующими параметрами: угол крыши около 25° и ширина свеса около 80см. Это к вопросу увеличения площади крыши за счет широкого свеса. То на то и получается, но в случае проекта Windows получаем крутой архитектурный «стиль прерий».

Основные капитальные конструкции
- Фундаментная железобетонная плита
- Внешние стены – газобетон 375мм. Высота этажа в чистоте 3м.
- Крыша с 2 вариантами стропильной системы: традиционной и с использованием стропильных ферм. Кровельное покрытие – металлочерепица.
Материалы для внешней отделки
- Цоколь: утепление плитами PIR со стеклохолстом, 2 варианта отделки: гидроизоляционная штукатурка или бесшовный искусственный камень
- Фасад комбинированный: облицовочный кирпич «баварская кладка», молдинги – крашеный бортовой камень, фиброцементные панели под дерево.
Холл
Холл, который условно является «грязной зоной», спроектирован таким образом, чтобы после попадания в дом уже больше не пересекать эту зону и не разносить грязь. На линии движения вход-кухня не должно быть ни одной двери. Но проектом предусмотрено, что при желании заказчика можно установить перегородку и дверь для полного изолирования холла от остальной части дома.
Минимально комфортные размеры холла: ширина – 1,2м и площадь - от 6м² вместе с гардеробом. Откуда берутся такие размеры? В гости приезжают на легковом автомобиле, куда, как правило, и помещается 4 человека. По 1м² на человека + 2м² на вместительный гардеробный шкаф шириной 3м и глубиной 70см. Не проектируйте тамбуры – это небольшие помещения из Прошлого с функционалом теплового буфера при входе в дом. В современных проектах - это нерациональное использование площади дома. В проекте Windows общая площадь холла около 11,3м² с шириной 1,3м с двумя зонами хранения.
Котельная
Вход в котельную из холла через межкомнатную дверь. Это более рациональное и современное решение, чем отдельный вход с улицы: 1) не тратите средства на 2ую теплую входную дверь, которая значительно дороже межкомнатной, 2) хозяйке удобнее попадать в котельную и производить влажную уборку, т.к. делать это нужно также часто, как и в доме, 3) не нужно расширять крыльцо и соответственно навес под наружную дверь для котельной.
Площадь котельной 5м² определена нормативными требованиями к объему котельной при размещении в ней газового котла, что составляет 15м³. Данный объем получаем при высоте потолков в проекте Windows 3м.
Такой площади для размещения всего котельного оборудования много, поэтому для него выделена одна дальняя стена, а основная площадь отведена под постирочную: 1) Стиральная и сушильная машины, которые в целях рационального использования площади располагаются друг над другом в колонну через специальный переходник. 2) Стеллаж для моющих средств, корзина для грязного белья. 3) Гладильная доска с утюгом. 4) Техническая раковина или лейка с трапом, чтобы наполнить ведро или помыть собаку после прогулки, отсюда ее бытовое название – лапомойка.
Гостиная
Оптимальное и рациональное решение – объединение гостиной, столовой и кухни в одно единое пространство, таким образом визуально и фактически увеличивается объем дома, уменьшая при этом материалоемкость - меньше перегородок, проемов, дверей, отделки и перерасхода материалов. А для тех, кто еще боится такого open space - современные вытяжки легко удаляют все кухонные запахи.
Планировки и площади комнат в проекте разработаны с учетом логики, математических закономерностей, симметрии и пропорций. Так для определения оптимальной площади гостиной я следовал принципу соразмерности по отношению к общей площади дома и рассчитал ее с помощью обратного числа золотого сечения φ=0,618. Для проекта Windows площадью 90м² кухня-гостиная имеет идеальную площадь 34м² из расчета: 90-(90*φ). Если упростить формулу, то пропорция гостиной к дому составляет 1:3.
Правила расположения мебели и планирование света в жилых помещениях, которые реализованы в проекте:
- Правило равновесия комнаты: комнату с крупногабаритной мебелью можно представить в виде плоскости с равновесным центром посередине. В проекте Windows равновесие комнаты не нарушается.
- Правило осевых линий: в планировочной программе создаем несколько параллельных и перпендикулярных линий, с помощью которых находим закономерности в симметрии и эргономике жилой комнаты с учетом расположения мебели, оптимальных расстояний для проходов и перемещений, в том числе для создания светотехнического проекта.
Для планировки гостиной отправной точкой является зона диван-телевизор, расстояние между которыми составляет 2,4м. Данное расстояние выбрано не случайно: 1. Оптимальное расстояние «глаза человека - экран ТВ». 2. Чем ближе диван к стене с панорамными окнами, тем больше площадь охвата окружающего ландшафта.
В проекте Windows предусмотрен большой стол на своем логичном постоянном месте, где он не будет мешать траекториям движения, с оптимальными размерами 1,8 х 0,9м, за которым с комфортом могут разместиться 8 человек: например, семья из 4х человек с бабушками и дедушками. А больше и не нужно, т.к. современный ритм жизни такой, что мы чаще встречаемся со знакомыми и друзьями в ресторанах, чем дома.
Кухня
Кухня спроектирована согласно правилу «рабочего треугольника», который определяет удобство готовки и совершение минимального количества перемещений по кухне. На кухне выделено несколько зон, по которым происходит перемещение в строгой и логичной последовательности: а. зона хранения (шкаф-пенал, холодильник, морозильник) → б. зона мойки с раковиной, с местами хранения корзины для мусора, аксессуаров и бытовой химии → в. рабочая зона (зона резки и подготовки продуктов) → г. зона приготовления (варочная панель, духовой шкаф, микроволновка) → д. зона паркинга мелкой бытовой техники. На указанных траекториях нет мебели, а также соблюдено оптимальное расстояние между предметами мебели (кухня-остров, кухня-стол), что составляет по проекту 130см.
В проекте Windows кухня рассчитана по формуле: Г-образная кухня с 2 линиями. Длина 1°й линии с кухонной столешницей 3м и 5 вертикальных модулей со шкафами шириной по 60см; длина 2°й линии с пеналами 2,4м и 4 пенала шириной по 60см. Глубина ниши под пеналы не менее 580мм = 560мм корпус + 20мм фасад. Черновая глубина ниши по проекту 60см. Ширина 4х пеналов по 60см составляет 2,4м, черновая длина ниши на 5см шире (для штукатурки и технологического зазора) и составляет 2,45м. Все указанные размеры дают возможность устанавливать кухни не только по индивидуальным, но и по типовым проектам, например, производства ИКЕА.
Это оптимальные размеры кухни. Если проектировать больше, то это, как правило, уже избыточно и бесполезно. Лучше грамотно организовать данное пространство. Угловой элемент исключен, т.к. он неудобный и самый дорогой - от 30% от стоимости всей кухни, а при наполнении оригинальными угловыми механизмами его стоимость становится еще более неадекватной. Данное решение подсказано итальянскими дизайнерами, которые в Г-образной кухне угол просто «зашивают» стеновыми или отделочными материалами. В проекте Windows это решение доработано и данное пространство не пропадает, а рационально используется, например, для хранения чемоданов.
Спальни
В проекте площадь спален оптимальная и составляет около 12м². В Европе спальню наделяют только функционалом «чтобы спать», а в комнате 12м² легко размещается: 1) Двуспальная кровать 160-180см с прикроватными полками. 2) Гардеробный шкаф глубиной 60см. 3) И остаются комфортные проходы между мебелью и стенами не менее 90см. В спальне, в отличие от гостиной, не нужно гнаться за большими пространствами, т.к. главная функция спальни – это обеспечение здорового микроклимата и психологического комфорта во время отдыха и сна. Человек подсознательно ищет для себя уютное, соразмерное пространство. Расположение шкафов между соседними спальнями создает дополнительный акустический комфорт. Гостевая спальня в проекте находится удобным особнячком.
Для определения оптимальной площади спальни я использовал не только европейские стандарты, но и принцип соразмерности по отношению к площади гостиной и рассчитал ее с помощью обратного числа золотого сечения φ=0,618. В проекте Windows c кухней-гостиной площадью 31,5м² спальня должна иметь площадь 12м² из расчета: 31,5-(31,5*φ), что можно упростить и привести к пропорции спальня/гостиная = 1/3. Еще одна закономерность: комфортное пространство для сна стремится к размерам куба. При высоте потолков 3м и площади спальни 12м² мы получаем 36м³, из которых 6м³ на встроенный гардероб глубиной 60см. Остается 30м³ и соответствующие размеры комнаты: высота 3м, по длине кровати 3м (остается проход перед кроватью около 90см) и по ширине кровати 3,4м (кровать 1,6м и 2 прохода по 90см). Что и следовало доказать: оптимальная площадь спальни равняется 12м².
Детские спальни также грамотно спроектированы и являются трансформируемыми под различные сценарии: от спальни для ребенка и подростка до гостевой комнаты и кабинета. Дети появляются в семье и быстро вырастают, поэтому при проектировании детской необходимо прибавить 2-3 года к возрасту ребенка. Если на момент начала проектирования ребенку, например, было 4 года, то, когда вы будете праздновать новоселье, он уже пойдет в школу. Затем, через 11 лет он поступит в университет, уедет в другой город или страну. Далее, ваши дети будут приезжать к вам со своими любимыми, а потом и с внуками. Это отражается, в первую очередь, в продуманном наперед электротехническом проекте (расположение осветительных приборов, розеток и выключателей). Полы, потолки и двери должны быть точно такими же, как во всех остальных комнатах. В идеале, в детской спальне должны меняться только занавески и кровать.
В проекте такое расположение письменных столов не случайно. Обычно столы проектируют так, что сидящий за столом находится спиной ко входу, что крайне дискомфортно. Только такая ориентация стола, как в детской, так и в кабинете, является правильной.
Ванная
Ванная с эргономичной и комфортной планировкой с площадью 5,7м², в которой размещается все необходимое: раковина с оптимальной шириной 80см, инсталляция, ванна с оптимальными размерами 180х80см, душевая зона с размерами 95х95см, зона хранения моющих средств, место для ростового зеркала и крючков для полотенец. Предусмотрено окно, высота которого на уровне 63см от чистого пола, что соответствует высоте ванны. Окно служит для эстетического отдыха, для залпового проветривания. Кроме того, оно запускает естественный свет в комнату, и вы будете реже включать свет. Дверь из ванной спроектирована так, чтобы при выходе из нее вы не видели гостиную и кухню. При этом она находиться в интуитивно понятном месте, чтобы гости не искали долго туалет и не врывались в другие комнаты. Почему общая ванная комната, а не раздельная с санузлом? Связано это также с оптимизацией строительства. При строительстве отдельного санузла готовьтесь к дополнительным расходам, а это в среднем 50-150 тыс. рублей: 1) дверь, 2) перегородка и отделка ее керамической плиткой с 2х сторон, 3) раковина с подводкой горячего и холодного водоснабжения, 4) зеркало, аксессуары – мыльница, полотенце, 5) вентиляционная вытяжка и вентканал, 6) аварийный трап, 7) отдельная группа света, розетка, выключатель и электропроводка, 8) если придерживаемся концепции «окно в каждое помещение» – плюс окно.
Вариант пристройки террасы и автомобильного навеса



Освещение
- На выходе из дома установлена мастер-кнопка, которая выключает весь свет в доме, кроме оборудования котельной, wi-fi, а также холодильника.
- В постирочной также установлена мастер-кнопка, которая выключает свет и питание утюга. Если свет не горит – значит утюг выключен.
Окна
Современные окна намного теплее, чем окна 10 или даже 5 лет назад. Да, теплопотери, безусловно, выше, чем через стены, но эмоции, которые они рождают бесценны! В Финляндии, более северной, чем Ленинградская область, загородные дома имеют больший процент остекления, окна в каждой комнате (в т.ч. сауна, постирочная), в угловых комнатах окна на каждой стене, а в жилых комнатах часто установлены панорамные окна. Окна, которые ДЕЛАЮТ интерьер проекта крутым и благодаря которым он получил свое название Windows: панорамные в пол, окно-фартук на кухне, окно в ванной. Панорамные окна расширяют внутреннее пространство, растворяя границу улица-дом.
При проектировании положение и размеры оконных проемов контролировались снаружи с соблюдением пропорций и симметрии по фасадам, с учетом примыкания к внешним стенам торцов шкафов и другой корпусной мебели и, разумеется, с учетом кратности газобетонных блоков! Для определения максимальных размеров 2х-камерных металлопластиковых окон без дополнительных разделений импостами я использовал следующие исходные данные:
- В проекте предусмотрены максимально возможные по размерам окна, в т.ч. панорамные в пол в жилых помещениях, при этом они не выходят за рамки стандартных размеров, а их стоимость соответственно не увеличивается за нестандарт.
- Стандартные размеры металлопластиковых окон ограничены максимально допустимой площадью стеклопакетов для стекла толщиной 4мм, которая составляет примерно 2,7м².
- Ширина ПВХ-рамы 100мм, ширина монтажного зазора 20мм. Итого, ширина проема больше размеров стеклопакета на 240мм по горизонтали и 240мм по вертикали.
Таким образом, двухкамерный стеклопакет со стеклом 4мм может иметь максимальные стандартные размеры 2м(h) х 1,35м. Размеры черновых проемов соответственно будут 2,24м х 1,59м, которые округляем до значений 2,25м х 1,6м для кратности газобетонной кладке.
Двери
Проектом предусмотрена возможность монтажа высоких дверей под потолок, что зрительно увеличивает высоту помещения. Все двери смещены к углу помещений для более рационального использования его площади. Ширина простенка со стороны угла должна быть не менее 13см для монтажа дверного наличника. Простенки между дверями в несущих стенах и перегородках, также, как и все стены в проекте, рассчитаны кратно газобетонным блокам, длина которых составляет 625мм.
Принципы открывания дверей очевидны и логичны для данной планировки и с учетом траекторий перемещений людей по дому. 1) Открытие дверей безопасное и не создает конфликтных сценариев, поскольку все они открываются внутрь помещений. Не ударяют проходящих мимо людей, другие двери на смежных стенах, мебель или сантехприборы. 2) Открывая двери, сразу видим основной объем комнат. 3) В одном просматриваемом пространстве и по одной стене двери спроектированы с одним принципом открывания.
Стандартные размеры черновых дверных проемов: высота 2,07м от уровня чистого пола; ширина: а. в спальни – 90см для полотна 80см; б. в технические помещения – 80см для полотна 70см; в. входная дверь 1м для полотна 90см.

