Уникальность проекта одноэтажного дома Windows площадью 90м2 настолько зашкаливает, что одно статьи https://full-houses.ru/proekt-odnoetazhnogo-doma-iz-gazobetona-windows-90m2-fh-90/ и 2х роликов на YouTube канале Строим с Эдом не хватило, чтобы рассказать о всех его преимуществах.

Вкратце, напомню про основные особенности проекта Windows, которые в комплексе делают его реализацию максимально экономичной:
- Простые формы и решения с низкой материалоемкостью – это значит идеальная защита технологий строительства от «кривых рук», следствием чего получаем надежные и долговечные конструкции.
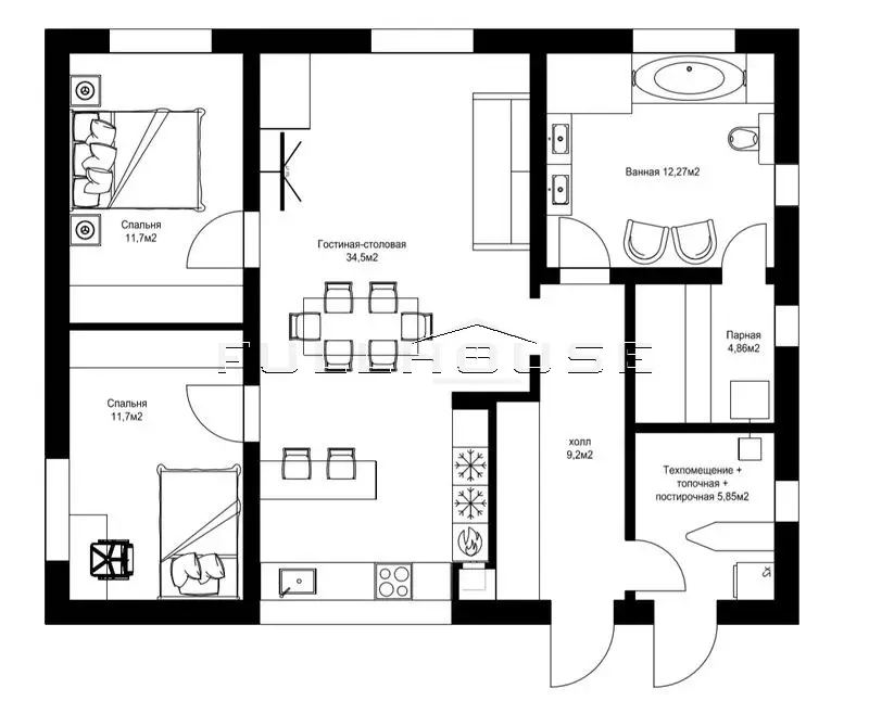
- Оптимальные и комфортные размеры помещений, каждый квадратный метр которых максимально полезен, что отражается в процентном соотношении активных зон к транзитным: 90:10, а жилой площади к нежилой: 75:25
- Внешние габариты дома 11,88м х 9,4м определены кратностью размеров основных строительных материалов: арматурные хлысты 11,7м, газобетонные блоки 625мм, доска для стропил 6м.
Кроме того, цифра 90м² является пограничной – с точки зрения экономии затрат: до 90м² выгоднее строить одноэтажный дом, а более – уже 2х-этажный.
Посмотреть смету со скатной кровлей Посмотреть смету с плоской кровлей
Посмотреть смету со скатной кровлей Посмотреть смету с плоской кровлей
Файлы доступны для скачивания без регистрации
Стоимость проекта 8 000 руб (только электронная версия в формате .pdf)
КАК КУПИТЬ ПРОЕКТ?
Перейдите на форму заказа, нажав кнопку ниже «купить проект». Наведите на картинку напротив названия планировки. Выберите нужную планировку, кликнув на нее, и нажмите «оформить заказ». Скачайте договор по передаче авторских прав, подпишите его, отсканируйте (сфотографируйте) и отправьте на нашу почту: 9227881@mail.ru. По реквизитам, указанным в договоре произведите оплату. После поступления денежных средств на расчетный счет компании, Вам на электронную почту придет кассовый чек и электронная версия проекта.
Состав проекта:
- Общие данные (1 страница);
- Поэтажные экспликации помещений (1-4 страницы соответственно количеству этажей);
- План фундамента с закладными под инженерные коммуникации
- Поэтажные кладочные планы (1-4 страницы соответственно количеству этажей);
- Поэтажная аксонометрия (1-4 страницы соответственно количеству этажей);
- План кровли (вид сверху) без прорисовки водосточной системы и вспомогательных элементов крыши (1 страница);
- Фасады в черно-белом виде без прорисовки элементов отделки и деталей декора (4 страницы);
- Разрез с указанием высотных отметок, размеры оконных и дверных проемов без прорисовки самих окон и дверей (1 страница).
Приведу экспликации помещений 2х основных вариантов планировок проекта Windows:
- Холл-гардеробная 9,2 и 11,3м²
- Техническое помещение: зона котельной, с\у, постирочная 5м²
- Ванная-душевая 5,7
- Три спальни каждая примерно по 12м²
- Гостиная-кухня-столовая 31,5 и 34,5м²
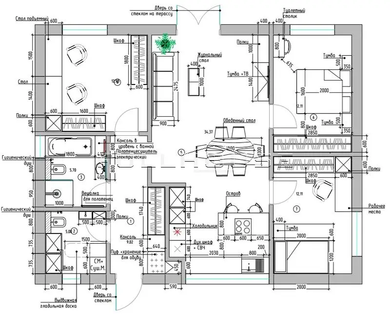
Европейский:

Традиционный:

К роликам про проект Windows есть комментарии о том, что он очень похож на квартиру. Для таких домов даже придумали модное название - Flat House. Я склонен не согласиться, т.к. между домом и квартирой – бездна. И вот только малая часть, что отличает индивидуальный дом: наличие собственного земельного участка с ландшафтом, индивидуальная парковка на несколько автомобилей, автономные инженерные системы и панорамные окна.
Итак, какие модификации данного проекта возможны?
- С плоской крышей. Немного забегаю вперед – на моем канале будет освещаться поэтапное строительство проекта Windows Villa c плоской крышей со всеми конструктивными решениями и освещением абсолютно всех расходов. Это будет формат видео с пошаговой инструкцией по строительству. Сейчас привожу одну из возможных визуализаций проекта, а подробности в одном из следующих видео.
![]()
- С гаражом для одного автомобиля. В данном варианте котельная находится за гаражом, а в технической зоне получается ванная, отдельный с\у и тамбур-проход между гаражом и холлом дома. Мое мнение – тамбур-проход – это нерациональная потеря площади. Из опыта – чаще закрывают ворота с улицы и заходят с крыльца. Поэтому рекомендую использовать данное пространство либо под гардеробную комнату, либо под сауну со входом из ванной.
![]()
![]()
- С русской парной или финской сауной. При таком решении в доме остается 2 спальни. Топка располагается в котельной. Реализацию проекта с таким вариантом планировки мы начинаем весной следующего года.
![]()
- По просьбам пользователей дизайн-проект Windows по умолчанию представлен со вторым с\у в техническом помещении. Кроме того, предусмотрен люк для бельепровода на стене между ванной и техническим помещением, где располагается постирочная. Чтобы после водных процедур положить грязное белье в корзину не нужно открывать вторую дверь, достаточно воспользоваться бельепроводом.
![]()
- Входная зона может быть отделена от основной части дома перегородкой с дверью для создания тамбура – теплового буфера.
- В зоне кухонного фартука окно может быть панорамным от рабочей столешницы и до линии верха других окон на фасаде. В таком случае, над рабочей зоной не будет навесных шкафчиков в пользу видов из окна, а вытяжка может быть островной. Есть еще вытяжки, интегрированные в индукционную панель или встроенные в столешницу, но это на сегодняшний день только премиальные и очень дорогие модели. Если хозяйке нужны по старинке навесные шкафчики, то окно можно оставить узким на высоту фартука около 60см. В таком случае, вытяжка может быть встроенной или настенной.
- Выходы на террасу могут быть из гостиной через распашные двери или портал PATIO.
- В обоих вариантах планировок проекта предусмотрена зона для размещения дровяного камина. В случае с Традиционной планировкой, единственное, нужно будет отказаться от одного окна в пользу камина.
- Не понимаю оппонентов, которые категорически против спален смежных с гостиной, утверждая, что это плохо для акустического комфорта во время сна. Во-первых, данное решение избавляет проект от длинных коридоров, во-вторых, это не общежитие и не коммуналка. В семье знают: когда кто-то спит или отдыхает, нужно вести себя тише. Кроме того, акустический комфорт достигается совершенно другими простыми и недорогими решениями, о которых я расскажу в рамках видео роликов, посвященных строительству Windows Villa.
- Высоту окон можно менять по месту, для кого панорамные окна кажутся избыточными, и кто хочет обычные окна с подоконниками. По тепловой защите окно всегда будет проигрывать стене, при этом стоимость строительства и отделки 1м² внешней стены примерно сопоставимо с 1м² энергоэффективного окна.
- Часто бывает, что проект в целом подходит, но нужно переместить окна в угловых комнатах с одной стены на другую. Для этого не нужно заказывать индивидуальное проектирование. Это можно сделать по месту, подписав с рабочими корректировки к кладочному плану. Кроме того, такое перемещение никак не влияет на несущую способность стен. Единственное, нужно учесть расстояние между окнами, чтобы оно было кратно длине целых блоков.
- Комбинированная внешняя отделка на доме позволяет уйти от сложного и материалоемкого монтажа скрытых оконных и дверных перемычек. При этом такая отделка в стиле РАЙТА выглядит дороже и эстетичнее, чем фасад, полностью выполненный из облицовочного кирпича.
- Крышу можно выполнить с любым другим углом. Кроме того, немного забегая вперед, мной разработана модификация проекта с двускатной крышей FINestra, про которую выйдет отдельное видео в ближайшее время.
![]()
- Можно ли данный дом поставить на мелкозаглубленную ленту? Да – можно, если грунты это позволяют. А вот экономическую составляющую, надежность и целесообразность нужно сравнивать между плитой и лентой с полами по грунту. Я рекомендую плитный фундамент.
- Почему в продаже только Архитектурный раздел с основными конструктивными узлами? Потому что нет одинаковых инженерных проектов. Инженерный проект всегда индивидуальный и он зависит от многих вводных: основной ресурс отопления – электричество, газ (магистральный или газголдер), дизель, твердотопливный котел, печь; выделенные электрические мощности, количество и положение розеток, выключателей, осветительных приборов, мощности бытовых приборов, тип локальной канализации. При этом в моих проектах на плане фундамента обозначены точные места и количество закладных под ввод-вывод канализации, водоснабжения и электрики. А подключать инженеров для проектирования нужно после окончания строительства коробки.
Несмотря на это, по просьбам многих подписчиков полный инженерный проект, а также дизайн-проект с профессиональными визуализациями по проекту Windows будет доступен бесплатно для всех тех, кто уже купил или планирует приобретение архитектурного проекта. Они будут доступны после реализации проекта Windows Villa в Ленинградской области в следующем году.
* — Цены ориентировочные и не являются публичной офертой. Актуальные цены могут быть указаны только в смете, для получения которой необходимо заполнить форму внизу страницы.





