Интернет магазин проектов

Проект FH-90A Avatar (90м²)

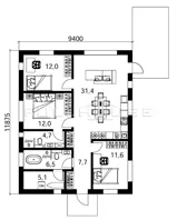
Информация о проекте

  • Общая площадь 90 м²
  • Этажи 1
  • Спальни 3
  • Стоимость
    проекта
    9 000 р. 36 000 р.
акция -75%
купили 12

Стоимость строительства дома, руб.

Строительство по проекту на 2026г.

материалы + работы + доставка + спецтехника

Коробка

Из газобетона

6 331 694

— Проект адаптирован для получения в банках ипотеки ИЖС.

Построить с нами
Проект FH-90A Avatar_1
Проект FH-90A Avatar_2
Проект FH-90A Avatar_3
Проект FH-90A Avatar_4
Проект FH-90A Avatar_5
Проект FH-90A Avatar_6
Проект FH-90A Avatar_7
Проект FH-90A Avatar_8
Проект FH-90A Avatar_9
Проект FH-90A Avatar_10
Проект FH-90A Avatar_1
Проект FH-90A Avatar_2
Проект FH-90A Avatar_3
Проект FH-90A Avatar_4
Проект FH-90A Avatar_5
Проект FH-90A Avatar_6
Проект FH-90A Avatar_7
Проект FH-90A Avatar_8
Проект FH-90A Avatar_9
Проект FH-90A Avatar_10
Визуализации являются интеллектуальной собственностью ИП Охильков Э.А. и защищены ч.4 ГК РФ.

Построенные объекты

Всего построено 158 объектов
22 фото
Строительство коттеджа по проекту FH-115 Status-1
  • Местоположение Московская обл.

  • Строительство дома из газобетона 115м²

20 фото
Строительство коттеджа по проекту FH-115 Status-2
  • Местоположение Московская обл.

  • Строительство дома из газобетона 115м²

Смотреть все построенные объекты
Предыдущий

FH-90 Windows Front

90м²
6 294 302 р.
Следующий

FH-90 Windows

90 м²
6 349 994 р.

Статьи о проекте FH-90A Avatar

Лучший проект одноэтажника Avatar 90м2
прочесть за 5 минут
Эдуард Охильков
Автор статьи
Эдуард Охильков.
Дата публикации
06.12.2025
Заявка на строительство дома или покупку проекта

Получить смету / задать вопрос

Мы не смогли определить ваш регион. Если место застройки находится в Московской или Ленинградской областях, укажите его в поле сообщения
Номер телефона
E-mail
Сообщение
Если есть свой проект (эскизы)

* — Поля, обязательные для заполнения

Заполняя данную форму, Пользователь даёт согласие на обработку, хранение и использование своих персональных данных на основании ФЗ № 152-ФЗ «О персональных данных» от 27.07.2006 г. в целях получения строительной сметы и консультаций. This site is protected by reCAPTCHA and the Google Privacy Policy and Terms of Service apply.
Проект дома Проект дома